毎日更新!1枚の写真更新履歴 ← 2009年11月 | | 2010年01月 →
画面下に行くほど新しい記事です
2009年12月01日 No.880 毎日更新!「一枚の写真」
2006年3月15日 スウェーデン ヘルシンボリ郊外のパッシブハウス(無暖房住宅)団地
外断熱コンサルタントのイーアイ: 2009年12月01日 |ページの先頭へ|
2009年12月02日 No.881 毎日更新!「一枚の写真」
2006年3月15日 スウェーデン ヘルシンボリ郊外のパッシブハウス(無暖房住宅)訪問先
外断熱コンサルタントのイーアイ: 2009年12月02日 |ページの先頭へ|
2009年12月03日 No.882 毎日更新!「一枚の写真」
2006年3月15日 スウェーデン ヘルシンボリ郊外のパッシブハウス(無暖房住宅)室内
外断熱コンサルタントのイーアイ: 2009年12月03日 |ページの先頭へ|
2009年12月04日 No.883 毎日更新!「一枚の写真」
2006年3月15日 スウェーデン ヘルシンボリ郊外のパッシブハウス(無暖房住宅)内部の熱交換換気装置
外断熱コンサルタントのイーアイ: 2009年12月04日 |ページの先頭へ|
2009年12月05日 No.884 毎日更新!「一枚の写真」
2006年3月15日 スウェーデン ヘルシンボリ郊外のパッシブハウス(無暖房住宅)内部の熱交換換気装置のダクト配管
外断熱コンサルタントのイーアイ: 2009年12月05日 |ページの先頭へ|
2009年12月06日 No.885 毎日更新!「一枚の写真」
2006年3月15日 スウェーデン ヘルシンボリ郊外のパッシブハウス(無暖房住宅)設計者のバーナー・ストローク氏 彼はこの住宅をセルフヒーテイングハウス(自己暖房住宅)と呼んだ
外断熱コンサルタントのイーアイ: 2009年12月06日 |ページの先頭へ|
2009年12月07日 No.886 毎日更新!「一枚の写真」
2006年3月15日 スウェーデン ヘルシンボリ郊外のパッシブハウス(無暖房住宅) ストローク氏の無暖房住宅に関する講義
外断熱コンサルタントのイーアイ: 2009年12月07日 |ページの先頭へ|
2009年12月08日 No.887 毎日更新!「一枚の写真」
2006年3月15日 スウェーデン ヘルシンボリ郊外のパッシブハウス(無暖房住宅) 熱交換換気システムの熱回収率が悪いと無暖房住宅は成立しない
外断熱コンサルタントのイーアイ: 2009年12月08日 |ページの先頭へ|
2009年12月09日 No.888 毎日更新!「一枚の写真」
2006年3月15日 スウェーデン ヘルシンボリ郊外のパッシブハウス(無暖房住宅)長野県で建設中の無暖房介護サービス施設の断熱について意見交換をする
外断熱コンサルタントのイーアイ: 2009年12月09日 |ページの先頭へ|
2009年12月10日 No.889 毎日更新!「一枚の写真」
2006年3月15日 スウェーデン ヘルシンボリ郊外のREC社の工場 ヨーラン社
外断熱コンサルタントのイーアイ: 2009年12月10日 |ページの先頭へ|
2009年12月11日 No.890 毎日更新!「一枚の写真」
2006年3月16日 スウェーデン バルナモ市にあるbsv設計事務所社屋全景
外断熱コンサルタントのイーアイ: 2009年12月11日 |ページの先頭へ|
2009年12月12日 No.891 毎日更新!「一枚の写真」
2006年3月16日 スウェーデン バルナモ市にあるbsv設計事務所におけるプレゼンテーション
外断熱コンサルタントのイーアイ: 2009年12月12日 |ページの先頭へ|
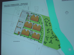
2009年12月13日 No.892 毎日更新!「一枚の写真」
2006年3月16日 スウェーデン バルナモ市に建設中の無暖房市営住宅 街区図
外断熱コンサルタントのイーアイ: 2009年12月13日 |ページの先頭へ|
2009年12月14日 No.893 毎日更新!「一枚の写真」
2006年3月16日 スウェーデン バルナモ市に建設中の無暖房市営住宅 1
外断熱コンサルタントのイーアイ: 2009年12月14日 |ページの先頭へ|
2009年12月15日 No.894 毎日更新!「一枚の写真」
2006年3月16日 スウェーデン バルナモ市に建設中の無暖房市営住宅 2
外断熱コンサルタントのイーアイ: 2009年12月15日 |ページの先頭へ|
2009年12月16日 No.895 毎日更新!「一枚の写真」
2006年3月16日 スウェーデン バルナモ市に建設中の無暖房市営住宅 断面図
外断熱コンサルタントのイーアイ: 2009年12月16日 |ページの先頭へ|
2009年12月17日 No.896 毎日更新!「一枚の写真」
2006年3月16日 スウェーデン バルナモ市に建設中の無暖房市営住宅 玄関まわり
外断熱コンサルタントのイーアイ: 2009年12月17日 |ページの先頭へ|
2009年12月18日 No.897 毎日更新!「一枚の写真」
2006年3月16日 スウェーデン バルナモ市に建設中の無暖房市営住宅 壁模型
外断熱コンサルタントのイーアイ: 2009年12月18日 |ページの先頭へ|
2009年12月19日 No.898 毎日更新!「一枚の写真」
2006年3月17日 スウェーデン イエテボリ市に建設中の工事現場
外断熱コンサルタントのイーアイ: 2009年12月19日 |ページの先頭へ|
2009年12月20日 No.899 毎日更新!「一枚の写真」
2006年3月17日 スウェーデン イエテボリ市に建設中の現場におかれたプレキャスト壁断面
外断熱コンサルタントのイーアイ: 2009年12月20日 |ページの先頭へ|
2009年12月21日 No.900 毎日更新!「一枚の写真」
2006年3月17日 スウェーデン イエテボリ市郊外の熱交換換気メーカー REC社における打合せ
外断熱コンサルタントのイーアイ: 2009年12月21日 |ページの先頭へ|
2009年12月22日 No.901 毎日更新!「一枚の写真」
2006年3月17日 スウェーデン イエテボリ市 REC社 1
外断熱コンサルタントのイーアイ: 2009年12月22日 |ページの先頭へ|
2009年12月23日 No.902 毎日更新!「一枚の写真」
2006年3月17日 スウェーデン イエテボリ市 REC社 2
外断熱コンサルタントのイーアイ: 2009年12月23日 |ページの先頭へ|
2009年12月24日 No.903 毎日更新!「一枚の写真」
2006年3月17日 スウェーデン イエテボリ市 REC社 3
外断熱コンサルタントのイーアイ: 2009年12月24日 |ページの先頭へ|
2009年12月25日 No.904 毎日更新!「一枚の写真」
2006年3月17日 スウェーデン イエテボリ市 REC社 4
外断熱コンサルタントのイーアイ: 2009年12月25日 |ページの先頭へ|
2009年12月26日 No.905 毎日更新!「一枚の写真」
2006年3月17日 スウェーデン イエテボリ市 REC社 5
外断熱コンサルタントのイーアイ: 2009年12月26日 |ページの先頭へ|
2009年12月27日 No.906 毎日更新!「一枚の写真」
2006年3月17日 スウェーデン イエテボリ市 外断熱マンション
外断熱コンサルタントのイーアイ: 2009年12月27日 |ページの先頭へ|
2009年12月28日 No.907 毎日更新!「一枚の写真」
2006年3月17日 スウェーデン イエテボリ市 建設中の外断熱マンション
外断熱コンサルタントのイーアイ: 2009年12月28日 |ページの先頭へ|
2009年12月29日 No.908 毎日更新!「一枚の写真」
2006年3月18日 スウェーデン イエテボリ市 ホワイト設計事務所 1
外断熱コンサルタントのイーアイ: 2009年12月29日 |ページの先頭へ|
2009年12月30日 No.909 毎日更新!「一枚の写真」
2006年3月18日 スウェーデン イエテボリ市 ホワイト設計事務所 2
外断熱コンサルタントのイーアイ: 2009年12月30日 |ページの先頭へ|
2009年12月31日 No.910 毎日更新!「一枚の写真」
2006年3月18日 スウェーデン イエテボリ市 ホワイト設計事務所 3
外断熱コンサルタントのイーアイ: 2009年12月31日 |ページの先頭へ|





